Продажа дома

Саратовская область, п Пробуждение, пр-кт Энтузиастов, 30

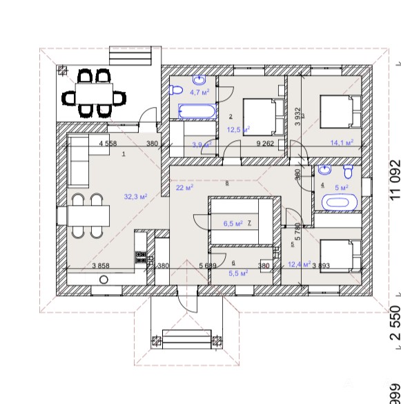
109 м²
Площадь
59,3 м²
Жилая площадь
37.00 м²
Площадь кухни
1
Этажность
8 сот
Площадь участка

8 350 000 ₽

76 606 ₽ за м²

ID объявления 8392619

Поделиться

Добавить в избранное

Арт. 57000110. Продам дом 109кв.м. БЕЗ КОМИССИИ.
Построен в п. Пробуждение, - Микрорайон Энтузиаст.
Земли населенных пунктов под ИЖС, участок размежёван 8 соток.
Дом подходит под сельскую ипотеку 3%, а так же под семейную 6%.
Дом выстроен на ленточном фундаменте+отмостка с зубом. Стены из газоблока с фасадным утеплением, кровля построена из массива и обшита мягкой кровлей (не шумная).
Окна пластиковые, рама черного цвета, стёкла с защитой от ультрафиолета. На участке установлен септик на 3 кольца.
Все коммуникации заведены дом. Ремонт пред чистовой (теплые полы, стяжка, штукатурка, отопление, подводы воды на кухне и в с/у).
Подключение к отопительному котлу. Оформление от ю/л, сдача дома осень - 2025г. - индивидуально под клиента!


Дата обновления: 26 сентября 2025

Дом/Коттедж/Таунхаус/Дуплекс От собственника под ИЖС Ипотека